More information
Open
Mon: 1:00 PM - 6:00 PM
Tue - Sun: 10:00 AM - 6:00 PM
Corner of 42nd Pl. NE and 87th Ave NEMarysville, WA 98270
Explore roomy living areas and great features.
-
Front porch
-
Eat-in kitchen
-
Quartz kitchen countertops
-
WaterSense® labeled faucets
-
Low-E windows
-
ENERGY STAR® certified home
This beautiful, two-story home showcases an open floor plan with 9-ft. first-floor ceilings and luxury vinyl plank flooring throughout main living areas. The kitchen is equipped with a breakfast bar, stainless steel appliances, quartz countertops, full-height backsplash and pantry. Upstairs, the primary suite features a connecting bath that includes a full shower, walk-in closet, dual-sink vanity and linen storage. Additional highlights include an upstairs laundry area, two-car side-by-side garage and open stair rail.
See sales counselor for approximate timing required for move-in ready homes.
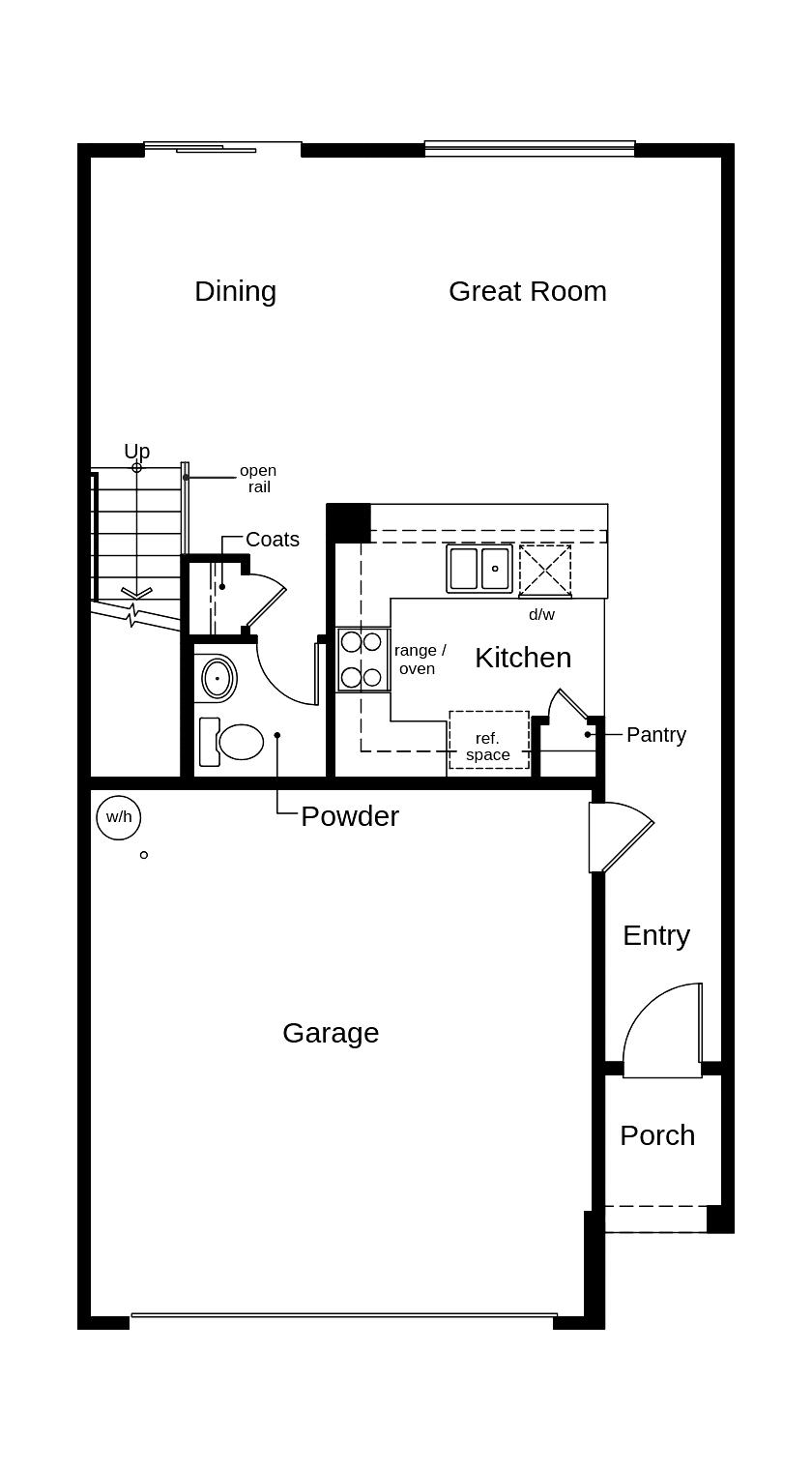
Floor plan layout of this move-in ready home.
Looking for a great loan partner?
KBHS Home Loans®is our affiliated home loan partner. They offer competitive rates and exceptional service on many types of mortgages designed to meet your needs.
- 725-324-5192
- 725-324-5192
- Contact Us
- Tour
-
Open
Mon: 1:00 PM - 6:00 PM
Tue - Sun: 10:00 AM - 6:00 PM
-
87th TownhomesView Community Location
-
KB® Sales Office
Corner of 42nd Pl. NE and 87th Ave NEMarysville, WA 98270From I-5, merge onto US-2 East and exit Hwy. 9 heading north. Turn left on E. Sunnyside School Rd., left on 87th Ave. NE and right on 42nd Pl. NE to sales center on the right.
Email us with any questions, we're here to help
First-time homebuyer? Here's what you'll need to know...
There's a lot to think about if you're a first-time homebuyer, so here's some good tips to get started.
Read Article >
Does KB offer homes that are already built?
Learn about the unique advantages of a move-in ready home.
Read Article >
8 reasons to buy a new home instead of used.
Discover why nothing can compare to a home that's all new, and built just for you.
Read Article >Broker Cooperation Welcome ©2026 KB Home does not warrant or guarantee that any as-built home will achieve ENERGY STAR certification. No affiliation or sponsorship is intended or implied with any companies or brand names listed above, and all trademarks are owned by the respective trademark owners. Many features/upgrades are preselected and included in cost of home. Buyer may be required to pay for any additional features/upgrades and is responsible for all taxes, insurance and other fees. Plans, inventory pricing, financing, terms, availability and specifications subject to change/prior sale without notice and may vary by neighborhood, lot location and home series. Sq. footage is approximate. Current time frames before closing may be longer than originally anticipated. See sales counselor for approximate timing required for move-in ready homes. HOA applies. ARTIST'S CONCEPTION: Photos and/or illustrations may depict upgraded landscaping/options and display decorator items/furnishings not available for purchase and may not represent lowest-priced homes. Where applicable: continued scope/preservation of wooded areas, wetlands, conservation areas, open space, green space, waterfront areas or lake views is subject to change and not guaranteed. See sales counselor for details. Price effective as of: 3/17/2026
‡According to data from https://fred.stlouisfed.org/graph/?g=1Qh9n
KBHS Home Loans, LLC NMLS 1542802 For licensing information visit nmlsconsumeraccess.org. Headquarters: 300 East Royal Lane, Suite 250, Irving, TX 75039. 855-378-6625. Applicant subject to credit and underwriting approval. Not all applicants will be approved for financing. Receipt of application does not represent an approval for financing or interest rate guarantee. Restrictions may apply. Equal Housing Lender. AZ: KBHS – 4949 Pioneer Ln, Lakeside, AZ 85929 – Mortgage Banker License #0939988; CA: Licensed by the Department of Financial Protection and Innovation Under the California Residential Mortgage Lending Act #41DBO-67718. California Financing Law License #60DBO-67717; CO: Regulated by the Colorado Division of Real Estate; WA: Washington Consumer Loan Company License #CL-1542802.
KB Home and KBHS share common ownership and because of this relationship may receive a financial or other benefit. You are not required to use KBHS as a condition of purchase or sale of any real estate.