More information
Open
Mon: 1:00 PM - 5:00 PM
Tue - Sun: 9:00 AM - 5:00 PM
Wed, Dec 24th: 9:00 AM - 3:00 PM
Wed, Dec 31st: 9:00 AM - 3:00 PM
Mon, Dec 15th: 9:00 AM - 1:00 PM
6143 N. Orleans St.Aurora, CO 80019
Explore roomy living areas and great features.
-
Kitchen tile backsplash
-
Spacious great room
-
Loft
-
Upstairs laundry room
-
WaterSense® labeled faucets
-
ENERGY STAR® certified home
This stunning, two-story home showcases an open floor plan with a spacious great room for gatherings and everyday living. The modern kitchen boasts an island and pantry. Upstairs, a versatile loft awaits. Enjoy the convenience of a dedicated laundry room. The primary bedroom features a walk-in closet and connecting bath for privacy and comfort. An unfinished basement presents a blank canvas for your future projects or extra storage needs.
See sales counselor for approximate timing required for move-in ready homes.
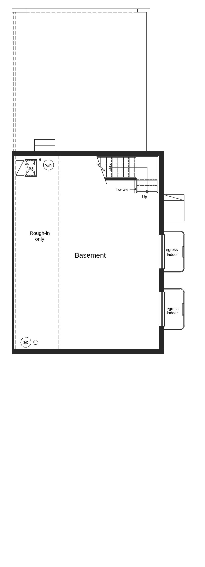
Floor plan layout of this move-in ready home.
Looking for a great loan partner?
KBHS Home Loans®is our affiliated home loan partner. They offer competitive rates and exceptional service on many types of mortgages designed to meet your needs.
- 303-323-1211
- 303-323-1211
- Contact Us
- Tour
- Reserve
-
Open
Mon: 1:00 PM - 5:00 PM
Tue - Sun: 9:00 AM - 5:00 PM
Special Hours
Wed, Dec 24th: 9:00 AM - 3:00 PM
Wed, Dec 31st: 9:00 AM - 3:00 PM
Mon, Dec 15th: 9:00 AM - 1:00 PM -
Painted Prairie VillasView Community Location
-
KB® Sales Office
6143 N. Orleans St.Aurora, CO 80019From I-70 East, exit Tower Rd. heading north. Turn right on E. 64th Ave., right on Picadilly Rd. and right on 61st Dr. to sales center on the left.
Email us with any questions, we're here to help
First-time homebuyer? Here's what you'll need to know...
There's a lot to think about if you're a first-time homebuyer, so here's some good tips to get started.
Read Article >
Does KB offer homes that are already built?
Learn about the unique advantages of a move-in ready home.
Read Article >
8 reasons to buy a new home instead of used.
Discover why nothing can compare to a home that's all new, and built just for you.
Read Article >Broker Cooperation Welcome ©2025 KB Home does not warrant or guarantee that any as-built home will achieve ENERGY STAR certification. No affiliation or sponsorship is intended or implied with any companies or brand names listed above, and all trademarks are owned by the respective trademark owners. Many features/upgrades are preselected and included in cost of home. Buyer may be required to pay for any additional features/upgrades and is responsible for all taxes, insurance and other fees. Plans, inventory pricing, financing, terms, availability and specifications subject to change/prior sale without notice and may vary by neighborhood, lot location and home series. Sq. footage is approximate. Current time frames before closing may be longer than originally anticipated. See sales counselor for approximate timing required for move-in ready homes. HOA applies. ARTIST'S CONCEPTION: Photos and/or illustrations may depict upgraded landscaping/options and display decorator items/furnishings not available for purchase and may not represent lowest-priced homes. Where applicable: continued scope/preservation of wooded areas, wetlands, conservation areas, open space, green space, waterfront areas or lake views is subject to change and not guaranteed. See sales counselor for details. Price effective as of: 12/13/2025
KBHS Home Loans, LLC NMLS 1542802 For licensing information visit nmlsconsumeraccess.org. Headquarters: 300 East Royal Lane, Suite 250, Irving, TX 75039. 855-378-6625. Applicant subject to credit and underwriting approval. Not all applicants will be approved for financing. Receipt of application does not represent an approval for financing or interest rate guarantee. Restrictions may apply. Equal Housing Lender. AZ: KBHS – 4949 Pioneer Ln, Lakeside, AZ 85929 – Mortgage Banker License #0939988; CA: Licensed by the Department of Financial Protection and Innovation Under the California Residential Mortgage Lending Act #41DBO-67718. California Financing Law License #60DBO-67717; CO: Regulated by the Colorado Division of Real Estate; WA: Washington Consumer Loan Company License #CL-1542802.
KB Home and KBHS share common ownership and because of this relationship may receive a financial or other benefit. You are not required to use KBHS as a condition of purchase or sale of any real estate.