
More information
Open
Mon: 1:00 PM - 6:00 PM
Tue - Sun: 10:00 AM - 6:00 PM
1411 121st Ave. SELake Stevens, WA 98258
Explore roomy living areas and great features.
-
Loft
-
Game room
-
Basement
-
Deck
-
WaterSense® labeled faucets
-
ENERGY STAR® certified home
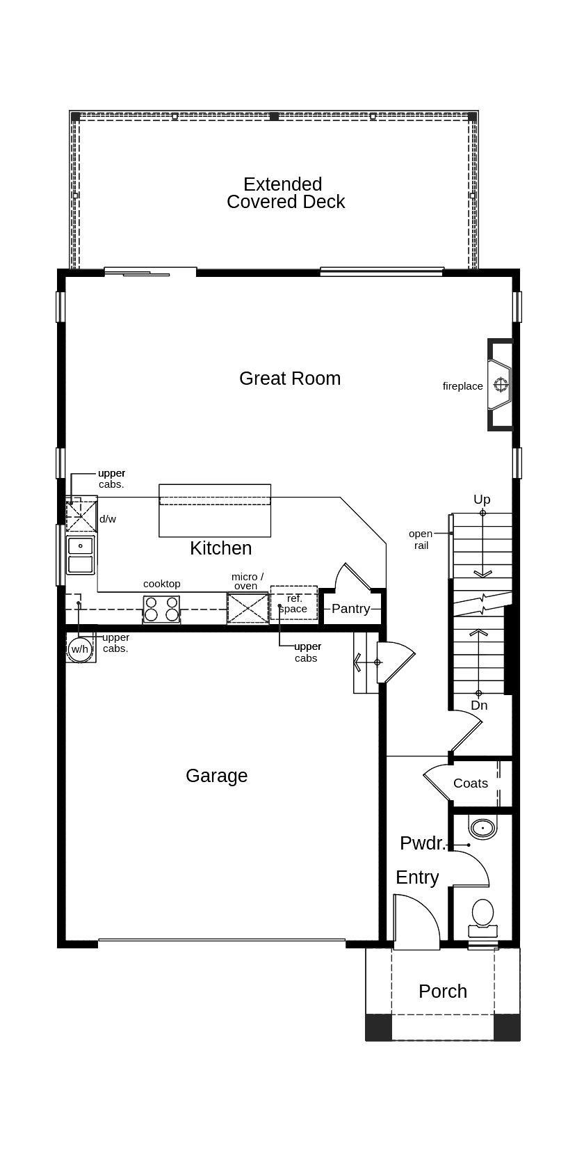
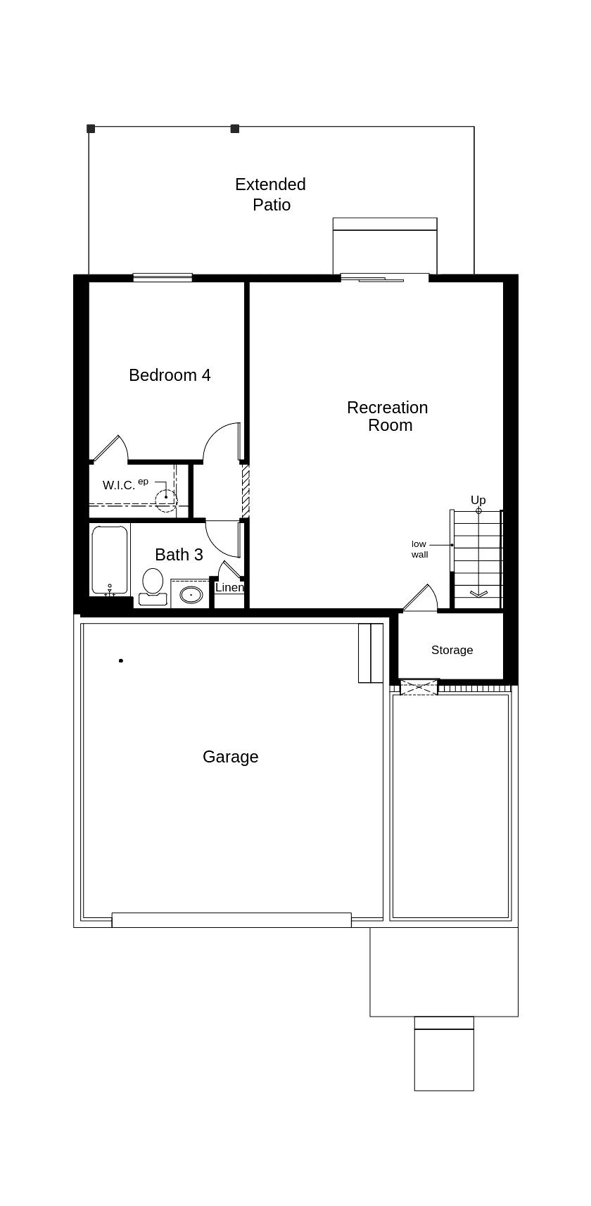
This beautiful, two-story home offers a welcoming blend of space and style. Enjoy an open floor plan with 9-ft. ceilings and luxury vinyl plank flooring throughout main floor. The great room boasts an electric fireplace. The kitchen shines with quartz countertops, stainless steel appliances, an island, full-height backsplash and 42-in. upper cabinets. Upstairs, the primary suite features a walk-in closet and elegant connecting bath that offers a dual-sink vanity, linen closet, separate bath, walk-in shower and enclosed water closet. A basement adds even more living space with a recreation room, full bath and private bedroom. Outside, enjoy the landscaped and fenced backyard, which backs up to open space and features an extended covered back patio for entertaining or relaxing. This ENERGY STAR® certified home is built for long-term efficiency and comfort.
Contact a sales counselor to learn more about move-in availability.
Floor plan layout of this move-in ready home.

Looking for a great loan partner?
KBHS Home Loans®is our affiliated home loan partner. They offer competitive rates and exceptional service on many types of mortgages designed to meet your needs.
- 725-324-5192
- 725-324-5192
- Contact Us
- Tour
- Reserve
-
Open
Mon: 1:00 PM - 6:00 PM
Tue - Sun: 10:00 AM - 6:00 PM
-
StillwaterView Community Location
-
Off-site KB® Sales Office
1411 121st Ave. SELake Stevens, WA 98258From I-5, take Exit 194/US-2 East. Continue straight onto 20th St. SE. Turn left on S. Lake Stevens Rd., which becomes Machias Cutoff. Turn right on 121st Ave. SE to sales office on the left.
Email us with any questions, we're here to help

First-time homebuyer? Here's what you'll need to know...
There's a lot to think about if you're a first-time homebuyer, so here's some good tips to get started.
Read Article >
Does KB offer homes that are already built?
Learn about the unique advantages of a move-in ready home.
Read Article >
8 reasons to buy a new home instead of used.
Discover why nothing can compare to a home that's all new, and built just for you.
Read Article >Broker Cooperation Welcome ©2025 KB Home does not warrant or guarantee that any as-built home will achieve ENERGY STAR certification. No affiliation or sponsorship is intended or implied with any companies or brand names listed above, and all trademarks are owned by the respective trademark owners. Many features/upgrades are preselected and included in cost of home. Buyer may be required to pay for any additional features/upgrades and is responsible for all taxes, insurance and other fees. Plans, inventory pricing, financing, terms, availability and specifications subject to change/prior sale without notice and may vary by neighborhood, lot location and home series. Sq. footage is approximate. Current time frames before closing may be longer than originally anticipated. See sales counselor for approximate timing required for move-in ready homes. HOA applies. ARTIST'S CONCEPTION: Photos and/or illustrations may depict upgraded landscaping/options and display decorator items/furnishings not available for purchase and may not represent lowest-priced homes. Where applicable: continued scope/preservation of wooded areas, wetlands, conservation areas, open space, green space, waterfront areas or lake views is subject to change and not guaranteed. See sales counselor for details. Price effective as of: 10/22/2025
KBHS Home Loans, LLC NMLS 1542802. For licensing information, go to www.nmlsconsumeraccess.org. Applicant is subject to credit and underwriting approval. Equal Housing Lender.