
More information
Open
Mon: 1:00 PM - 5:00 PM
Tue - Sun: 10:00 AM - 6:00 PM
804 Wissett Pl. Patterson, CA 95363
Explore roomy living areas and great features.
-
Spacious great room
-
Kitchen island
-
Gas range
-
Loft
-
Solar energy system
-
ENERGY STAR® certified home
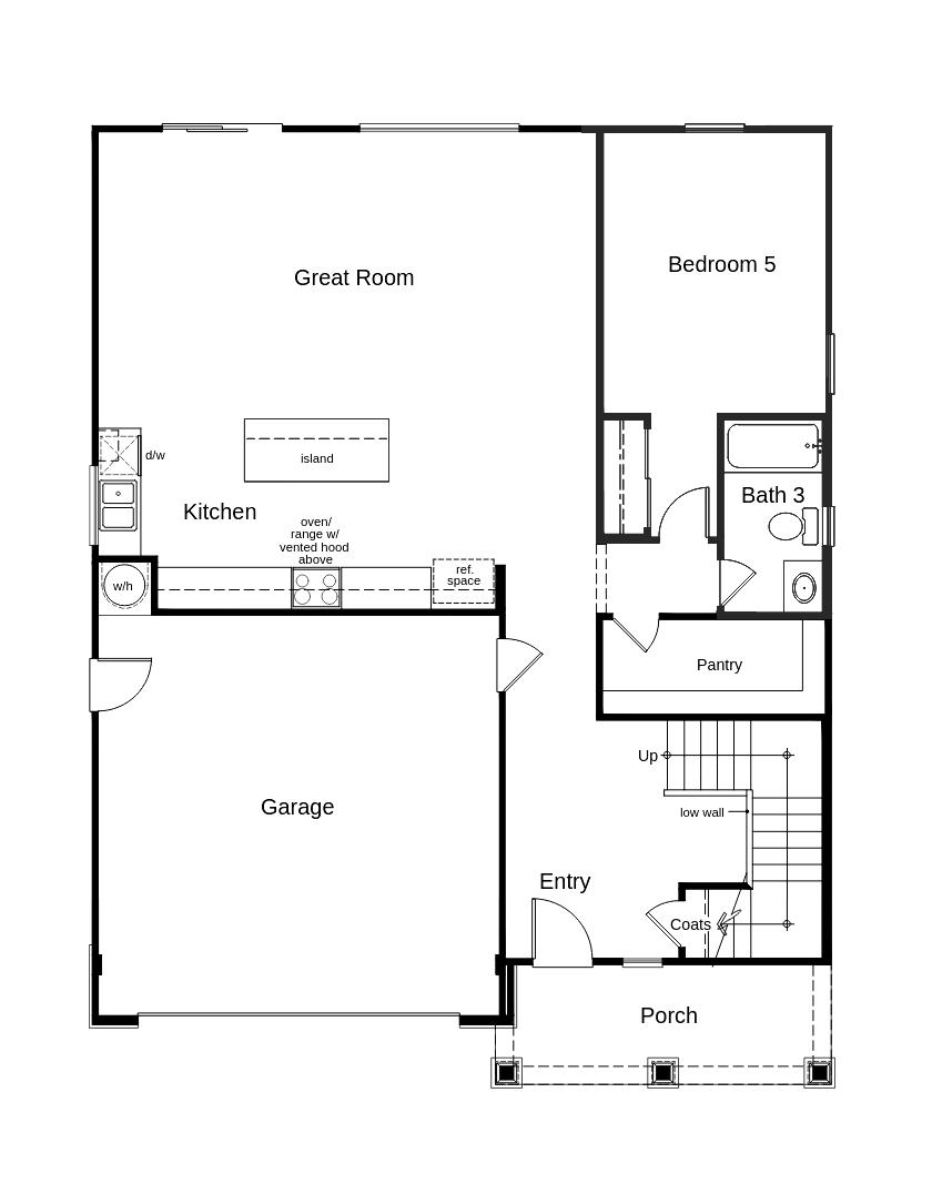
This inviting, two-story home showcases an open floor plan with 9-ft. first-floor ceilings and luxury vinyl plank flooring throughout main living areas. Prepare meals in the modern kitchen, which boasts an island, quartz countertops, walk-in pantry, elegant cabinets and Whirlpool® stainless steel appliances, including freestanding gas range. Upstairs, a loft provides space for a home office or exercise area. The primary suite features a connecting bath that offers a dual-sink vanity, enclosed water closet, linen closet, walk-in closet and tub/shower combination. Enjoy eco-friendly living with a solar energy system (included).
See sales counselor for approximate timing required for move-in ready homes.
Floor plan layout of this move-in ready home.

Looking for a great loan partner?
KBHS Home Loans®is our affiliated home loan partner. They offer competitive rates and exceptional service on many types of mortgages designed to meet your needs.
- 209-262-1626
- Contact Us
- Tour
- Reserve
-
Open
Mon: 1:00 PM - 5:00 PM
Tue - Sun: 10:00 AM - 6:00 PM
-
Sycamore at Patterson RanchView Community Location
-
KB® Sales Office
804 Wissett Pl. Patterson, CA 95363From I-5, exit Sperry Ave./Hwy. 130 heading east. Turn left on 2nd St., right on Walnut Ave. and left on Sycamore Ave. Turn left on English Birch Ave. and right on Wissett Pl. Follow KB flags to sales office.
Email us with any questions, we're here to help

First-time homebuyer? Here's what you'll need to know...
There's a lot to think about if you're a first-time homebuyer, so here's some good tips to get started.
Read Article >
Does KB offer homes that are already built?
Learn about the unique advantages of a move-in ready home.
Read Article >
8 reasons to buy a new home instead of used.
Discover why nothing can compare to a home that's all new, and built just for you.
Read Article >Broker Cooperation Welcome ©2025 KB Home does not warrant or guarantee that any as-built home will achieve ENERGY STAR certification. No affiliation or sponsorship is intended or implied with any companies or brand names listed above, and all trademarks are owned by the respective trademark owners. Many features/upgrades are preselected and included in cost of home. Buyer may be required to pay for any additional features/upgrades and is responsible for all taxes, insurance and other fees. Plans, inventory pricing, financing, terms, availability and specifications subject to change/prior sale without notice and may vary by neighborhood, lot location and home series. Sq. footage is approximate. Current time frames before closing may be longer than originally anticipated. See sales counselor for approximate timing required for move-in ready homes. HOA applies. ARTIST'S CONCEPTION: Photos and/or illustrations may depict upgraded landscaping/options and display decorator items/furnishings not available for purchase and may not represent lowest-priced homes. Where applicable: continued scope/preservation of wooded areas, wetlands, conservation areas, open space, green space, waterfront areas or lake views is subject to change and not guaranteed. See sales counselor for details. Price effective as of: 10/7/2025
KBHS Home Loans, LLC NMLS 1542802. For licensing information, go to www.nmlsconsumeraccess.org. Applicant is subject to credit and underwriting approval. Equal Housing Lender.