
More information
Open By Appointment
Mon: 2:00 PM - 6:00 PM
Tue - Sun: 10:00 AM - 6:00 PM
3802 Norbridge Ave.Castro Valley, CA 94546
Explore roomy living areas and great features.
-
Open floor plan
-
Kitchen USB charging port
-
Solar energy system
-
Smart thermostat
-
WaterSense® labeled faucets
-
ENERGY STAR® certified home
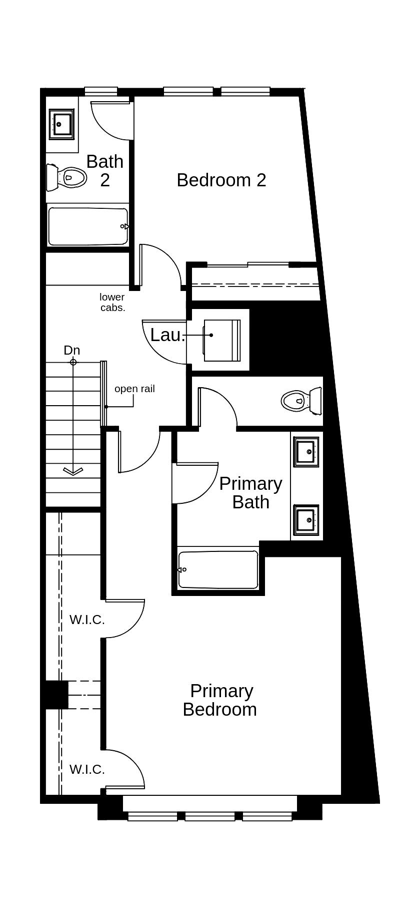
This beautiful, three-story home showcases a bright open floor plan with luxury vinyl plank flooring and a spacious living and dining area. Upstairs, the modern kitchen boasts an island, ample cabinets, pantry and stainless steel appliances. Enjoy the outdoors on the deck. The large, third-floor primary bedroom features a walk-in closet and spa-like primary bath that offers a dual-sink vanity. Other highlights include 50-amp. electric charging station pre-wiring, a solar energy system (lease or purchase required) and limited 10-year warranty.
See sales counselor for approximate timing required for move-in ready homes.
Floor plan layout of this move-in ready home.

Looking for a great loan partner?
KBHS Home Loans®is our affiliated home loan partner. They offer competitive rates and exceptional service on many types of mortgages designed to meet your needs.
- 510-990-2936
- Contact Us
- Tour
-
Open By Appointment
Mon: 2:00 PM - 6:00 PM
Tue - Sun: 10:00 AM - 6:00 PM
-
The ChapterView Community Location
-
KB® Sales Office
3802 Norbridge Ave.Castro Valley, CA 94546From I-880 North, merge onto I-580 East. Exit Redwood Rd. and turn left. Turn right on Castro Valley Blvd., right on Norbridge Ave. Follow KB signs to entrance.
Email us with any questions, we're here to help

First-time homebuyer? Here's what you'll need to know...
There's a lot to think about if you're a first-time homebuyer, so here's some good tips to get started.
Read Article >
Does KB offer homes that are already built?
Learn about the unique advantages of a move-in ready home.
Read Article >
8 reasons to buy a new home instead of used.
Discover why nothing can compare to a home that's all new, and built just for you.
Read Article >Broker Cooperation Welcome ©2025 KB Home does not warrant or guarantee that any as-built home will achieve ENERGY STAR certification. No affiliation or sponsorship is intended or implied with any companies or brand names listed above, and all trademarks are owned by the respective trademark owners. Many features/upgrades are preselected and included in cost of home. Buyer may be required to pay for any additional features/upgrades and is responsible for all taxes, insurance and other fees. Plans, inventory pricing, financing, terms, availability and specifications subject to change/prior sale without notice and may vary by neighborhood, lot location and home series. Sq. footage is approximate. Current time frames before closing may be longer than originally anticipated. See sales counselor for approximate timing required for move-in ready homes. HOA applies. ARTIST'S CONCEPTION: Photos and/or illustrations may depict upgraded landscaping/options and display decorator items/furnishings not available for purchase and may not represent lowest-priced homes. Where applicable: continued scope/preservation of wooded areas, wetlands, conservation areas, open space, green space, waterfront areas or lake views is subject to change and not guaranteed. See sales counselor for details. Price effective as of: 10/7/2025
KBHS Home Loans, LLC NMLS 1542802. For licensing information, go to www.nmlsconsumeraccess.org. Applicant is subject to credit and underwriting approval. Equal Housing Lender.